근생시설 안내
청년 2030세대의 라이프스타일에 최적화된 실용적인 맞춤형주택
청년 2030세대의 라이프스타일에 최적화된 실용적인 맞춤형주택
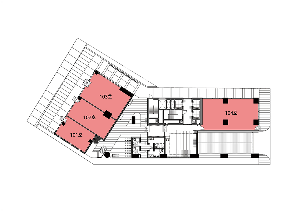
| 호실 | 101호 | 102호 | 103호 | 104호 |
| 전용면적 | 58.31㎡ 17.6평 |
78.11㎡ 23.6평 |
102.09㎡ 30.9평 |
139.21㎡ 42.1평 |
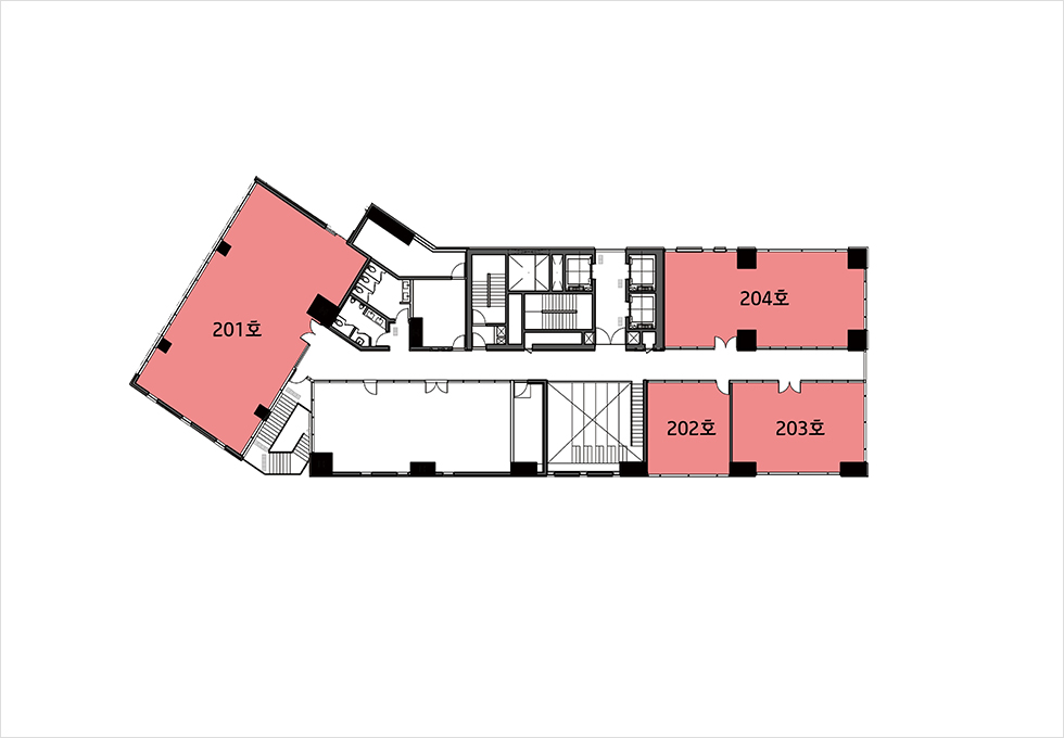
| 호실 | 201호 | 202호 | 203호 | 204호 |
| 전용면적 | 174.44㎡ 52.8평 |
43.89㎡ 13.3평 |
69.01㎡ 20.9평 |
112.96㎡ 34.17평 |
문의전화 : 02-855-2401
이메일 : juventus240@kt-living.com